

















Mieszkanie na sprzedaż, Lublin, 38,4m2
Marzysz o własnym mieszkaniu? Szukasz przestrzeni, w której stworzysz swoje pierwsze wspólne miejsce? Ta oferta jest dla Ciebie!
DLA KOGO? Mieszkanie idealne dla singla lub dla młodej pary która szuka:
- komfortowego mieszkania na start,
- dobrej lokalizacji i wygód codziennego życia w pobliżu,
- inwestycji – możliwość szybkiego wynajmu mieszkania
OPIS MIESZKANIA
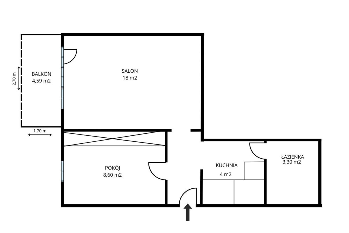
Ofertę stanowi komfortowe 2-pok. mieszkanie przy ul. Startowej 14 w Lublinie o powierzchni 38,40 m2. Mieszkanie zlokalizowane na parterze w kameralnym, zamkniętym osiedlu w zadbanym 4 piętrowym bloku.
Mieszkanie znajduje się na zamykanym osiedlu co zapewnia bezpieczeństwo. Mieszkanie przeznaczone jest do odświeżenia/remontu. Dwa nieprzechodnie pokoje, od strony wschodniej, z których jeden stanowi sypialnie, wyposażoną w zabudowaną szafę. Drugi pokój stanowi przestronny salon z wyjściem na balkon. Balkon o pow. ok. 4,60 m2 (1,70 z x 2,70 m) jest przestronny i wychodzi na teren zielony, co zapewnia spokój i ciszę – teren ogrodzony, bez dostępu do niego z zewnątrz. W mieszkaniu NIE MA PIECYKA GAZOWEGO! gaz podłączony jest do kuchenki (możliwość zmiany na kuchenkę elektryczną). Jest możliwość przeniesienia kuchni np. w miejsce mniejszego pokoju i np. powiększenia sobie łazienki (wersja pierwotna). Drzwi do mieszkania antywłamaniowe. Szeroka, czysta klatka schodowa. Parking przy budynku, wzdłuż ulicy. Obecnie mieszkanie jest wynajmowane, co stanowi również doskonałą opcję zakupu mieszkania pod wynajem.
Rozkład pomieszczeń:
- przestronny salon z wyjściem na balkon i teren zielony
- osobna sypialnia
- kuchnia
- łazienka z WC
- korytarz
+ piwnica o pow. 4,90 m2
LOKALIZACJA
Osiedle jest bardzo dobrze skomunikowane z pozostała częścią miasta. Do komunikacji miejskiej mamy zaledwie 5 min. pieszo, gdzie znajdziemy wiele linii w różne strony . W pobliżu znajdziemy sklepy spożywcze (stokrotka, żabka, kaufland, biedronka), Przedszkole, Szkołę Podstawową 15, Szkoła Podstawowa im. św. Dominika Savio, Zespół Szkół Energetycznych, salony beauty, siłownię, usługi medyczne, bankomat, paczkomat, restauracje, orlen oraz wiele innych.
KOSZTY UTRZYMANA
Ciepła i zimna woda z wodociągu miejskiego, ogrzewanie z sieci miejskiej.
Czynsz administracyjny kształtuje się na poziomie ok. 430 zł / 2 osoby. Opłaty za prąd, gaz – według zużycia.
CHCESZ TU ZAMIESZKAĆ?
Mieszkanie można obejrzeć po uprzednim umówieniu się na konkretną godzinę.
Ze względów bezpieczeństwa przed spotkaniem związanym z prezentacją będziemy Państwa prosić o podanie danych personalnych oraz o złożenie czytelnego podpisu na dokumentach potwierdzających chęć obejrzenia nieruchomości.
CENA OFERTOWA do negocjacji
389 000,00 zł
Nie szukaj dalej. Zadzwoń!
Oferta na wyłączność biura nieruchomości ONESTO BROKER.
Marzysz o własnym mieszkaniu? Szukasz przestrzeni, w której stworzysz swoje pierwsze wspólne miejsce? Ta oferta jest dla Ciebie!
DLA KOGO? Mieszkanie idealne dla singla lub dla młodej pary która szuka:
- komfortowego mieszkania na start,
- dobrej lokalizacji i wygód codziennego życia w pobliżu,
- inwestycji – możliwość szybkiego wynajmu mieszkania
OPIS MIESZKANIA
Ofertę stanowi komfortowe 2-pok. mieszkanie przy ul. Startowej 14 w Lublinie o powierzchni 38,40 m2. Mieszkanie zlokalizowane na parterze w kameralnym, zamkniętym osiedlu w zadbanym 4 piętrowym bloku.
Mieszkanie znajduje się na zamykanym osiedlu co zapewnia bezpieczeństwo. Mieszkanie przeznaczone jest do odświeżenia/remontu. Dwa nieprzechodnie pokoje, od strony wschodniej, z których jeden stanowi sypialnie, wyposażoną w zabudowaną szafę. Drugi pokój stanowi przestronny salon z wyjściem na balkon. Balkon o pow. ok. 4,60 m2 (1,70 z x 2,70 m) jest przestronny i wychodzi na teren zielony, co zapewnia spokój i ciszę – teren ogrodzony, bez dostępu do niego z zewnątrz. W mieszkaniu NIE MA PIECYKA GAZOWEGO! gaz podłączony jest do kuchenki (możliwość zmiany na kuchenkę elektryczną). Jest możliwość przeniesienia kuchni np. w miejsce mniejszego pokoju i np. powiększenia sobie łazienki (wersja pierwotna). Drzwi do mieszkania antywłamaniowe. Szeroka, czysta klatka schodowa. Parking przy budynku, wzdłuż ulicy. Obecnie mieszkanie jest wynajmowane, co stanowi również doskonałą opcję zakupu mieszkania pod wynajem.
Rozkład pomieszczeń:
- przestronny salon z wyjściem na balkon i teren zielony
- osobna sypialnia
- kuchnia
- łazienka z WC
- korytarz
+ piwnica o pow. 4,90 m2
LOKALIZACJA
Osiedle jest bardzo dobrze skomunikowane z pozostała częścią miasta. Do komunikacji miejskiej mamy zaledwie 5 min. pieszo, gdzie znajdziemy wiele linii w różne strony . W pobliżu znajdziemy sklepy spożywcze (stokrotka, żabka, kaufland, biedronka), Przedszkole, Szkołę Podstawową 15, Szkoła Podstawowa im. św. Dominika Savio, Zespół Szkół Energetycznych, salony beauty, siłownię, usługi medyczne, bankomat, paczkomat, restauracje, orlen oraz wiele innych.
KOSZTY UTRZYMANA
Ciepła i zimna woda z wodociągu miejskiego, ogrzewanie z sieci miejskiej.
Czynsz administracyjny kształtuje się na poziomie ok. 430 zł / 2 osoby. Opłaty za prąd, gaz – według zużycia.
CHCESZ TU ZAMIESZKAĆ?
Mieszkanie można obejrzeć po uprzednim umówieniu się na konkretną godzinę.
Ze względów bezpieczeństwa przed spotkaniem związanym z prezentacją będziemy Państwa prosić o podanie danych personalnych oraz o złożenie czytelnego podpisu na dokumentach potwierdzających chęć obejrzenia nieruchomości.
CENA OFERTOWA do negocjacji
389 000,00 zł
Nie szukaj dalej. Zadzwoń!
Oferta na wyłączność biura nieruchomości ONESTO BROKER.
Skontaktuj się ze mną, abym mogła przedstawić szczegóły oferty!
Jeśli nie znalazłeś tego czego szukasz, zadzwoń, a przygotuję dla Ciebie indywidualną ofertę!

Doradca ds. Nieruchomości