












Lokal na sprzedaż, Lublin, 360m2
Poszukujesz w Lublinie budynku dla swojej firmy w świetnej lokalizacji? Budynku pod najem by przynosił zysk? Sprawdź tą ofertę!
OPIS NIERUCHOMOŚCI
Ofertę sprzedaży stanowi trzykondygnacyjny budynek usługowo-biurowy. Budynek znajduje się na działce o powierzchni 656m2, nr ewid. 23/1. Powierzchnia budynku wynosi 360 m2 (po 120 m2 na kondygnację), powierzchni użytkowej 324,72 m2. Nieruchomość zlokalizowana jest w lubelskiej dzielnicy Wrotków w obszarze przemysłowym, pośród innych różnorodnych firm. Sąsiedztwo stanowią budynki biurowe, produkcyjne, magazynowe w większości należące do przedsiębiorstwa SIPMA oraz obiekt siedziby Komunalnego Przedsiębiorstwa Robót Inżynierii Sanitarnej KPRiS Sp. z o.o.
Dojazd do nieruchomości nawierzchnią asfaltową od ul. Zemborzyckiej, ul. Budowlanej i ul. Ciepłowniczą.
Możliwe kierunki działalności dopasowane do obiektu i lokalnego zapotrzebowania:
Usługi medyczne i wellness np. prywatne gabinety lekarskie, stomatologia, fizjoterapia, centrum rehabilitacji.
Usługi finansowo-biznesowe kancelarie, biura rachunkowe, księgowe, doradztwo finansowe/IT.
Centrum coworkingu / biura elastyczne dla freelancerów i małych firm, które chcą mieć profesjonalne zaplecze w pobliżu innych firm w dzielnicy.
Szkoła językowa, centrum szkoleń / konferencji zapotrzebowanie w rejonach akademickich, biznesowych i mieszkaniowych.
Usługi logistyczne / odbioru punkt paczek, serwis drukarek/komputerów, punkt kurierskiwarehousing.
Specjalistyczne sklepy lub showroomy branża design, meble, akcesoria biurowe etc.
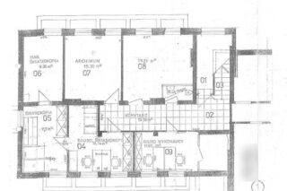
I kondygnacja:
- Sala konferencyjna
- Gabinet
- Pokój biurowy
- 2 WC
- Hol
II kondygnacja:
- 5 pokoi biurowych o różnej powierzchni
- 2 WC
- korytarz
Podpiwniczenie
- 5 pomieszczeń użytkowych
- Kotłownia
Pomieszczenia zadbane, wykończone pod własne użytkowanie z dbałością i z dobrych materiałów. Obecnie pomieszczenia biurowe są wynajmowane z możliwością kontynuacji wynajmu lub miesięcznym i trzymiesięcznym terminem wypowiedzenia najmu. Budynek ogrodzony z bramą, miejscami parkingowymi oraz dwoma garażami po 30m2.
Działka jest płaska i ogrodzona: słupki i podmurówka murowana z cegły klinkierowej, przęsła metalowe spawane. Podobnie brama na przeciw wjazdu do garaży i furtka, od której prowadzi chodnik z kostki brukowej przy którym znajdują się krzewy. Przed budynkiem jest plac utwardzony kostką brukową.
MEDIA
wodociągowe, kanalizacyjne, CO z pieca olejowego, system alarmowy, telefoniczne, budynek wyposażony w nowoczesną sieć komputerową – przyłącza w każdym pomieszczeniu, własny serwer.
DZIEŃ POKAZOWY
Tą nieruchomość można obejrzeć podczas dnia pokazowego. Zadzwoń już dziś i umów się na prezentację.
CENA OFERTOWA do negocjacji
1 390 000,00 zł
Poszukujesz w Lublinie budynku dla swojej firmy w świetnej lokalizacji? Budynku pod najem by przynosił zysk? Sprawdź tą ofertę!
OPIS NIERUCHOMOŚCI
Ofertę sprzedaży stanowi trzykondygnacyjny budynek usługowo-biurowy. Budynek znajduje się na działce o powierzchni 656m2, nr ewid. 23/1. Powierzchnia budynku wynosi 360 m2 (po 120 m2 na kondygnację), powierzchni użytkowej 324,72 m2. Nieruchomość zlokalizowana jest w lubelskiej dzielnicy Wrotków w obszarze przemysłowym, pośród innych różnorodnych firm. Sąsiedztwo stanowią budynki biurowe, produkcyjne, magazynowe w większości należące do przedsiębiorstwa SIPMA oraz obiekt siedziby Komunalnego Przedsiębiorstwa Robót Inżynierii Sanitarnej KPRiS Sp. z o.o.
Dojazd do nieruchomości nawierzchnią asfaltową od ul. Zemborzyckiej, ul. Budowlanej i ul. Ciepłowniczą.
Możliwe kierunki działalności dopasowane do obiektu i lokalnego zapotrzebowania:
Usługi medyczne i wellness np. prywatne gabinety lekarskie, stomatologia, fizjoterapia, centrum rehabilitacji.
Usługi finansowo-biznesowe kancelarie, biura rachunkowe, księgowe, doradztwo finansowe/IT.
Centrum coworkingu / biura elastyczne dla freelancerów i małych firm, które chcą mieć profesjonalne zaplecze w pobliżu innych firm w dzielnicy.
Szkoła językowa, centrum szkoleń / konferencji zapotrzebowanie w rejonach akademickich, biznesowych i mieszkaniowych.
Usługi logistyczne / odbioru punkt paczek, serwis drukarek/komputerów, punkt kurierskiwarehousing.
Specjalistyczne sklepy lub showroomy branża design, meble, akcesoria biurowe etc.
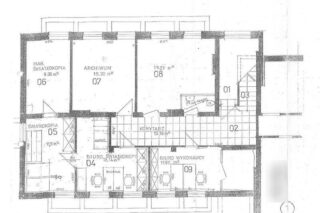
I kondygnacja:
- Sala konferencyjna
- Gabinet
- Pokój biurowy
- 2 WC
- Hol
II kondygnacja:
- 5 pokoi biurowych o różnej powierzchni
- 2 WC
- korytarz
Podpiwniczenie
- 5 pomieszczeń użytkowych
- Kotłownia
Pomieszczenia zadbane, wykończone pod własne użytkowanie z dbałością i z dobrych materiałów. Obecnie pomieszczenia biurowe są wynajmowane z możliwością kontynuacji wynajmu lub miesięcznym i trzymiesięcznym terminem wypowiedzenia najmu. Budynek ogrodzony z bramą, miejscami parkingowymi oraz dwoma garażami po 30m2.
Działka jest płaska i ogrodzona: słupki i podmurówka murowana z cegły klinkierowej, przęsła metalowe spawane. Podobnie brama na przeciw wjazdu do garaży i furtka, od której prowadzi chodnik z kostki brukowej przy którym znajdują się krzewy. Przed budynkiem jest plac utwardzony kostką brukową.
MEDIA
wodociągowe, kanalizacyjne, CO z pieca olejowego, system alarmowy, telefoniczne, budynek wyposażony w nowoczesną sieć komputerową – przyłącza w każdym pomieszczeniu, własny serwer.
DZIEŃ POKAZOWY
Tą nieruchomość można obejrzeć podczas dnia pokazowego. Zadzwoń już dziś i umów się na prezentację.
CENA OFERTOWA do negocjacji
1 390 000,00 zł
Skontaktuj się ze mną, abym mogła przedstawić szczegóły oferty!
Jeśli nie znalazłeś tego czego szukasz, zadzwoń, a przygotuję dla Ciebie indywidualną ofertę!

Doradca ds. Nieruchomości












