















Mieszkanie na sprzedaż, Lublin, 32,57m2
Poszukujesz mieszkania w doskonałej lokalizacji dla siebie lub inwestycyjnie? Sprawdź tą ofertę dla Ciebie.
OPIS NIERUCHOMOŚCI
Ofertę stanowi mieszkanie o powierzchni 32,57 m2, położone przy Alejach Racławickich 22, w dzielnicy Wieniawa Lublin.
Nieruchomość zlokalizowana jest w świetnej lokalizacji. Wieniawa to dzielnica uniwersytecka nastawiona na obsługę miejscowych studentów, dzięki temu usługi, czy komunikacja są tu bardzo dobrze rozwinięte. Mieszkanie sprawdzi się idealnie pod najem, a także do zamieszkania dla singla lub pary. Pod blokiem ogólnodostępne miejsca parkingowe. Spokojne, przyjazne i zielone osiedle dla każdego.
Ekspozycja okien: kuchnia i pokój – południe. Okna skierowane na zielony dziedziniec.
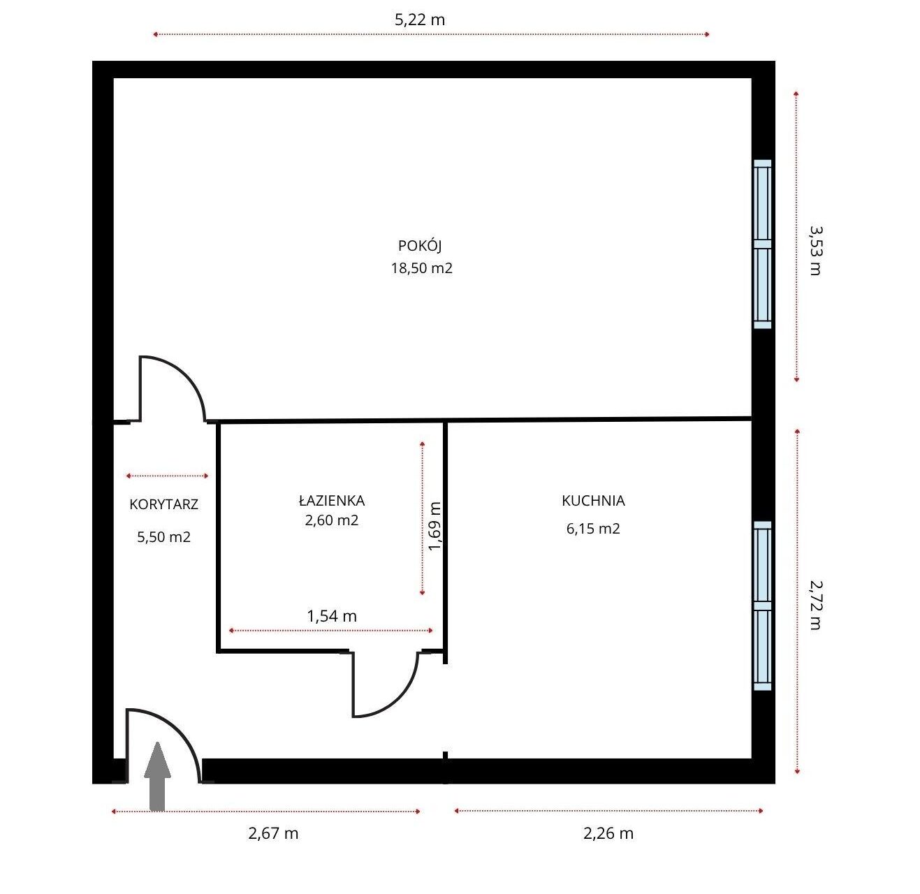
W skład rozkładowego mieszkania wchodzą:
- sypialnia,
- osobna kuchnia
- łazienka z WC
- korytarz
+ piwnica 4,50 m2
Rzut mieszkania załączony w zdjęciach. Wymiaru pomieszczeń nie są podane z rzeczywistą dokładnością, lecz są wartościami zaokrąglonymi.
W pobliżu sklepy spożywcze, uczelnie wyższe, poczta, stomatologia, restauracje, szpital, przedszkole, szkoła podstawowa, kościół itp. Wszystkie najważniejsze usługi w sąsiedztwie. Wiele miejsc na spacer, czy rekreacje: Ogród Saski, ścieżki piesze i rowerowe. Świetne połączenie komunikacyjne samochodowe jak i przez transport publiczny MPK, zlokalizowany zaledwie 3 min. pieszo.
STAN PRAWNY
Pełna własność z możliwością zakupu na kredyt hipoteczny. Księga Wieczysta bez obciążeń.
KOSZTY UTRZYMANA
Woda z wodociągu miejskiego, ogrzewanie z sieci miejskiej.
Czynsz administracyjny kształtuje się na poziomie ok. 660 zł. Opłaty za prąd, gaz – według zużycia.
CHCESZ TU ZAMIESZKAĆ?
Mieszkanie można obejrzeć po uprzednim umówieniu się na konkretną godzinę.
Ze względów bezpieczeństwa przed spotkaniem związanym z prezentacją będziemy Państwa prosić o podanie danych personalnych oraz o złożenie czytelnego podpisu na dokumentach potwierdzających chęć obejrzenia nieruchomości.
CENA OFERTOWA do negocjacji
364 000,00 zł
Nie szukaj dalej. Zadzwoń!
Oferta na wyłączność biura nieruchomości ONESTO BROKER.
Poszukujesz mieszkania w doskonałej lokalizacji dla siebie lub inwestycyjnie? Sprawdź tą ofertę dla Ciebie.
OPIS NIERUCHOMOŚCI
Ofertę stanowi mieszkanie o powierzchni 32,57 m2, położone przy Alejach Racławickich 22, w dzielnicy Wieniawa Lublin.
Nieruchomość zlokalizowana jest w świetnej lokalizacji. Wieniawa to dzielnica uniwersytecka nastawiona na obsługę miejscowych studentów, dzięki temu usługi, czy komunikacja są tu bardzo dobrze rozwinięte. Mieszkanie sprawdzi się idealnie pod najem, a także do zamieszkania dla singla lub pary. Pod blokiem ogólnodostępne miejsca parkingowe. Spokojne, przyjazne i zielone osiedle dla każdego.
Ekspozycja okien: kuchnia i pokój – południe. Okna skierowane na zielony dziedziniec.
W skład rozkładowego mieszkania wchodzą:
- sypialnia,
- osobna kuchnia
- łazienka z WC
- korytarz
+ piwnica 4,50 m2
Rzut mieszkania załączony w zdjęciach. Wymiaru pomieszczeń nie są podane z rzeczywistą dokładnością, lecz są wartościami zaokrąglonymi.
W pobliżu sklepy spożywcze, uczelnie wyższe, poczta, stomatologia, restauracje, szpital, przedszkole, szkoła podstawowa, kościół itp. Wszystkie najważniejsze usługi w sąsiedztwie. Wiele miejsc na spacer, czy rekreacje: Ogród Saski, ścieżki piesze i rowerowe. Świetne połączenie komunikacyjne samochodowe jak i przez transport publiczny MPK, zlokalizowany zaledwie 3 min. pieszo.
STAN PRAWNY
Pełna własność z możliwością zakupu na kredyt hipoteczny. Księga Wieczysta bez obciążeń.
KOSZTY UTRZYMANA
Woda z wodociągu miejskiego, ogrzewanie z sieci miejskiej.
Czynsz administracyjny kształtuje się na poziomie ok. 660 zł. Opłaty za prąd, gaz – według zużycia.
CHCESZ TU ZAMIESZKAĆ?
Mieszkanie można obejrzeć po uprzednim umówieniu się na konkretną godzinę.
Ze względów bezpieczeństwa przed spotkaniem związanym z prezentacją będziemy Państwa prosić o podanie danych personalnych oraz o złożenie czytelnego podpisu na dokumentach potwierdzających chęć obejrzenia nieruchomości.
CENA OFERTOWA do negocjacji
364 000,00 zł
Nie szukaj dalej. Zadzwoń!
Oferta na wyłączność biura nieruchomości ONESTO BROKER.
Skontaktuj się ze mną, abym mogła przedstawić szczegóły oferty!
Jeśli nie znalazłeś tego czego szukasz, zadzwoń, a przygotuję dla Ciebie indywidualną ofertę!

Doradca ds. Nieruchomości